655 Cypress Way Oregon WI 53575

7
Property Description

Proposed Construction:
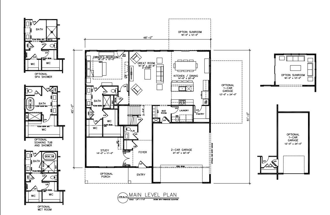
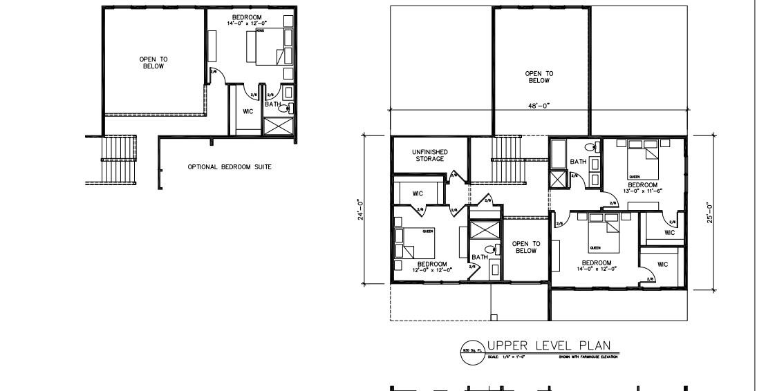
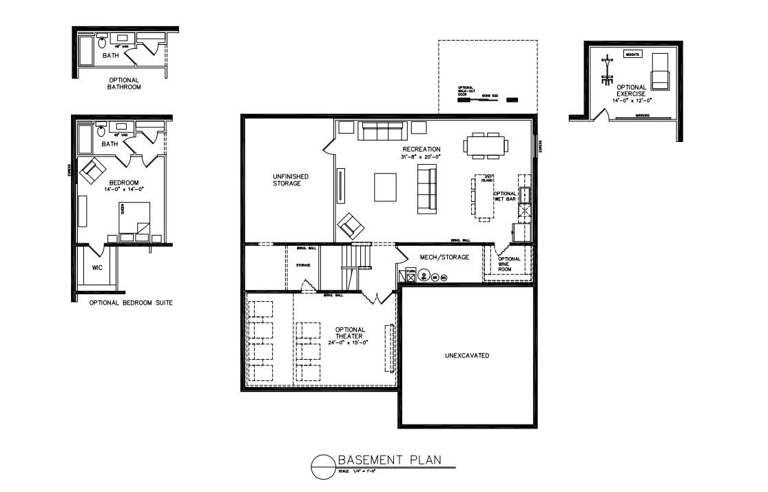
The Stonehaven by Eldon Homes, an exceptional 4-bed, 4 bath Customizable Craftsman two-story in one of areas premier golf-course communities. Featuring a 3-car garage and striking open-to-below great room, this home blends luxury with comfort. The gourmet kitchen offers solid-surface counters and a large island that anchors the main living area. A main-level office/flex room and mudroom add daily convenience. The primary suite offers a customizable bath and walk-in closet. Upper-level bedrooms are well sized with a full bath. Finished lower-level options allow for a gym, theater, wet bar, add Bedroom (640 sqft rec room included). Located in The Legend at Bergamot with top-tier golf, clubhouse, pools, courts, and a vibrant community lifestyle.

Basic Details
Property Type
Residential
Listing Type
For Sale
Listing ID
2012675
Price
$829,900.00
Year Built
2026
Status
Active
Office Name
Elevate Estates
Full Bathrooms
3
Unparsed Address
655 Cypress Way, Oregon WI 53575
Features
Heating System
Forced Air, Natural Gas
Basement
Full, Sump Pump, Bath/Stubbed
Architectural Style
Prairie/Craftsman
Interior Features
High Speed Internet, Kitchen Island
Address Map
Country
US
State
WI
County
Dane
City
Oregon
Zipcode
53575
Street Name
Cypress
Street Number
655
Street Suffix
Way
Longitude
S89° 24' 36.3"
Latitude
N42° 55' 9.2"
Unparsed Address
655 Cypress Way, Oregon WI 53575
Zoning
G1
Directions
From Alpine Way turn Left onto Augusta Drive, Left onto Cypress Way
Neighborhood
High School
Oregon
Middle School
Call School District
Elementary School
Call School District
Additional Information
Lot Features
On Golf Course
Garage
3
Construction Materials
Stone, HardiPlank Type
Listing Information
List Office Mls Id
9269
List Office Name
Elevate Estates
List Agent Mls Id
12882
Mls Status
Active
Modification Timestamp
2025-11-19T11:12:58+00:00
Originating System Name
REALTORS® Association of South Central Wisconsin
Status Change Timestamp
2025-11-17
This information, provided by seller, listing broker, and other parties, may not have been verified.